Назовите оператору контакт центра при звонке ваш промокод:    

Безопасная аренда

Подробнее

Онлайн просмотры и договор с цифровой подписью

Помещение
Этаж подвал
Площадь 407.8 м2
Ставка 630 руб./м2
Характеристики
Безопасность
Охрана Круглосуточная
Коммуникации
Телефон есть
Интернет оптоволокно
В арендную плату входит
  • Профессиональное управление
  • НДС
Оплачивается отдельно
  • Клининг
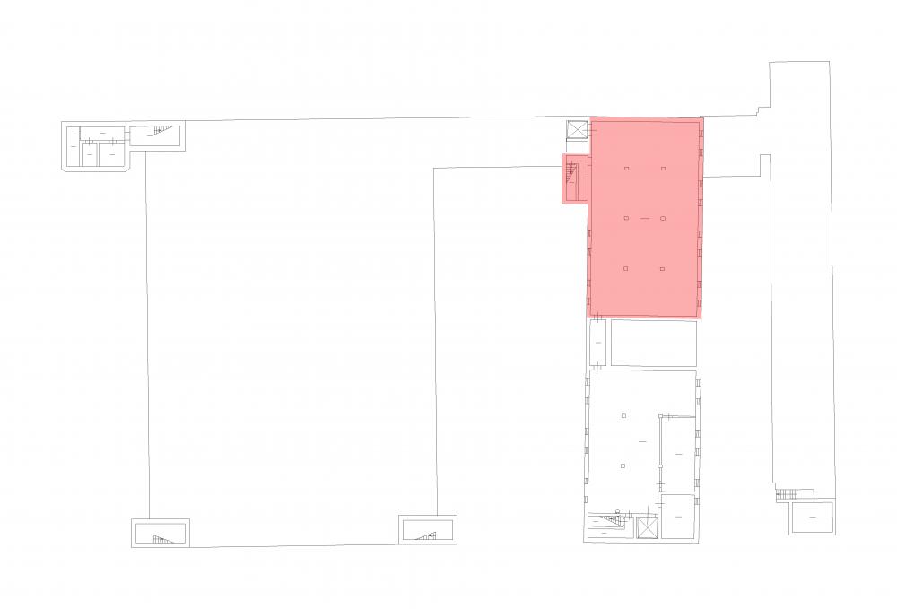
План помещения
Описание
Аренда помещения под МАСТЕРСКУЮ у станции метро "Обводный Канал".

Помещение ПЛОЩАДЬЮ 407.8 кв. м расположено на Боровой ул., д.51.
Этаж - ПОДВАЛ.
Высота потолка 2.59 м, бетонный пол, шаг колонн: 4.29*5.87 м.

ИНЖЕНЕРНОЕ ОБЕСПЕЧЕНИЕ: отопление, освещение, выделенная электроэнергия.

Охрана 24 часа.
Возможен круглосуточный режим работы.
+7 (812) 644-42-02
Перезвоните мне
Хотите посмотреть? Покажем вам это помещение и несколько похожих
Запишитесь на просмотр
Вас также может заинтересовать