Назовите оператору контакт центра при звонке ваш промокод:    

Безопасная аренда

Подробнее

Онлайн просмотры и договор с цифровой подписью

Помещение
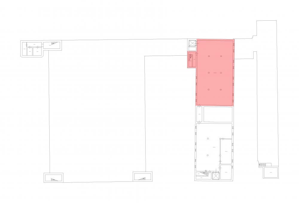
Этаж подвал
Площадь 407 м2
Ставка 599 руб./м2
Характеристики
Безопасность
Охрана Круглосуточная
Коммуникации
Телефон есть
Интернет оптоволокно
В арендную плату входит
  • Профессиональное управление
  • НДС
Оплачивается отдельно
  • Клининг
План помещения
Описание
Отапливаемое сухое производственно-складское помещение сдаётся в аренду по адресу: Боровая ул., д. 51.

Этаж - подвал.
Внутренняя отделка: стены - кирпич, краска, потолки высотой 2.59 м, бетонный пол, шаг колонн: 4.29*5.87 м.

Оснащение: отопление, освещение, выделенная электроэнергия до 30 кВт, пожарная сигнализация.

На территории есть парковка.
В шаговой доступности - магазины, столовые.

Охрана 24 часа.
Возможен круглосуточный режим работы.
+7 (812) 644-42-02
Перезвоните мне
Хотите посмотреть? Покажем вам это помещение и несколько похожих
Запишитесь на просмотр
Вас также может заинтересовать