Назовите оператору контакт центра при звонке ваш промокод:    

Безопасная аренда

Подробнее

Онлайн просмотры и договор с цифровой подписью

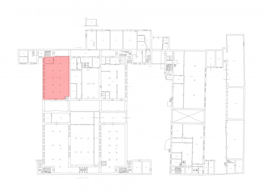
Помещение
Этаж 1
Площадь 224.7 м2
Ставка 1 120 руб./м2
Характеристики
Безопасность
Охрана Круглосуточная
Коммуникации
Телефон есть
Интернет оптоволокно
В арендную плату входит
  • Профессиональное управление
  • НДС
Оплачивается отдельно
  • Клининг
План помещения
Описание
Сдаётся в аренду складское помещение у станции метро "Обводный Канал".

Основные характеристики:
*Общая площадь: 224,7 кв. м.
*Высота потолков: 3,26 м.
*Отделка: окрашенные стены, бетонный пол.

Технические характеристики: выделенная электрическая мощность, система освещения, отопление, холодное водоснабжение, канализация.

Складское оснащение:
*Возможность организации погрузочно-разгрузочных работ.
*Доступ к высокоскоростному интернету и телефонной связи.

Расположение и инфраструктура:
*Удобная транспортная доступность: близость к набережной Обводного канала, Лиговскому проспекту и Рыбинской улице.
*Круглосуточная охрана территории.
*Система видеонаблюдения.
*Собственная парковка во внутреннем дворе.
*Развитая инфраструктура: магазины и пункты общественного питания в пешей доступности.

Помещение идеально подойдет для: хранения товаров, распределительного центра, сезонного хранения, складской переработки.
+7 (812) 644-42-02
Перезвоните мне
Хотите посмотреть? Покажем вам это помещение и несколько похожих
Запишитесь на просмотр
Вас также может заинтересовать