Назовите оператору контакт центра при звонке ваш промокод:    

Безопасная аренда

Подробнее

Онлайн просмотры и договор с цифровой подписью

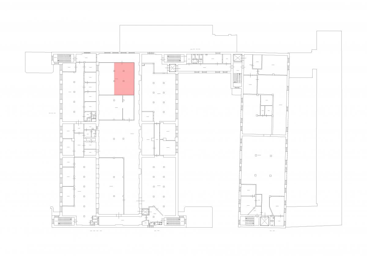
Помещение
Этаж 2
Площадь 64.9 м2
Ставка 881 руб./м2
Характеристики
Безопасность
Охрана Круглосуточная
Коммуникации
Телефон есть
Интернет оптоволокно
В арендную плату входит
  • Профессиональное управление
  • НДС
Оплачивается отдельно
  • Клининг
План помещения
Описание
Теплый и сухой склад для онлайн-магазина в аренду от собственника, без переплат.
Расположен на 2-м этаже, Боровая 51.

На этаже есть грузовой лифт.

Окон нет.
Состояние хорошее.

Потолки 3,45 м.
Полы - бетон.
Есть отопление и освещение.

На территории есть парковка.
Охрана 24 часа.

Возможен круглосуточный режим работы.
+7 (812) 644-42-02
Перезвоните мне
Хотите посмотреть? Покажем вам это помещение и несколько похожих
Запишитесь на просмотр
Вас также может заинтересовать