Назовите оператору контакт центра при звонке ваш промокод:    

Безопасная аренда

Подробнее

Онлайн просмотры и договор с цифровой подписью

Помещение
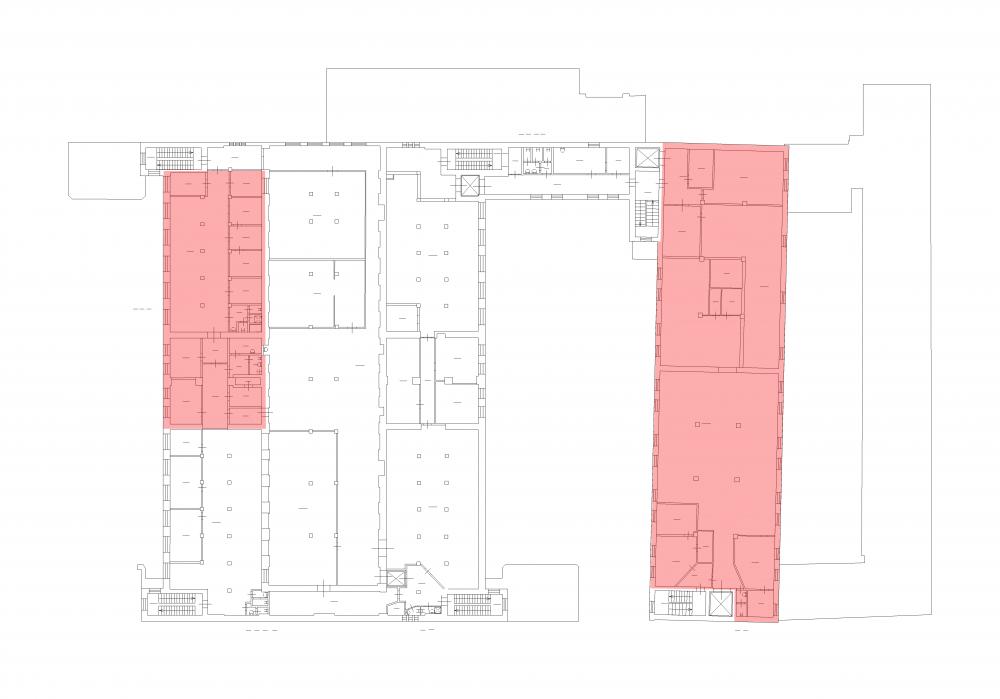
Этаж 2
Площадь 1 138.3 м2
Ставка 1 065 руб./м2
Характеристики
Безопасность
Охрана Круглосуточная
Коммуникации
Телефон есть
Интернет оптоволокно
В арендную плату входит
  • Профессиональное управление
  • НДС
Оплачивается отдельно
  • Клининг
План помещения
Описание
Во Фрунзенском районе города собственник сдаёт производственные помещения общей площадью 1138.3 кв. м.

Технопарк находится по адресу: ул. Боровая, д. 51.
В десяти минутах ходьбы находятся станция метро "Обводный канал" и автовокзал.
В транспортной доступности — станции "Лиговский проспект" и "Площадь Восстания".
Рядом проходит набережная Обводного канала. В непосредственной близости работают гипермаркет "Ашан" и столовая.

Площади находятся на 2-м этаже кирпичного здания, имеется грузовой лифт г/п 0,5 т (1.73 на 2.15 м).
Потолки: 3,37 - 3,89 м, стены и полы бетонные.

В помещениях проведены электричество, отопление, водоотведение и вентиляция.
Можно подключить выделенную мощность. В наличии интернет, телефония и пожарная сигнализация.
Возможность аренды офиса на территории.
Ведётся круглосуточная охрана.
Предложение может быть интересно крупной промышленной организации.
+7 (812) 644-42-02
Перезвоните мне
Хотите посмотреть? Покажем вам это помещение и несколько похожих
Запишитесь на просмотр
Вас также может заинтересовать