Назовите оператору контакт центра при звонке ваш промокод:    

Безопасная аренда

Подробнее

Онлайн просмотры и договор с цифровой подписью

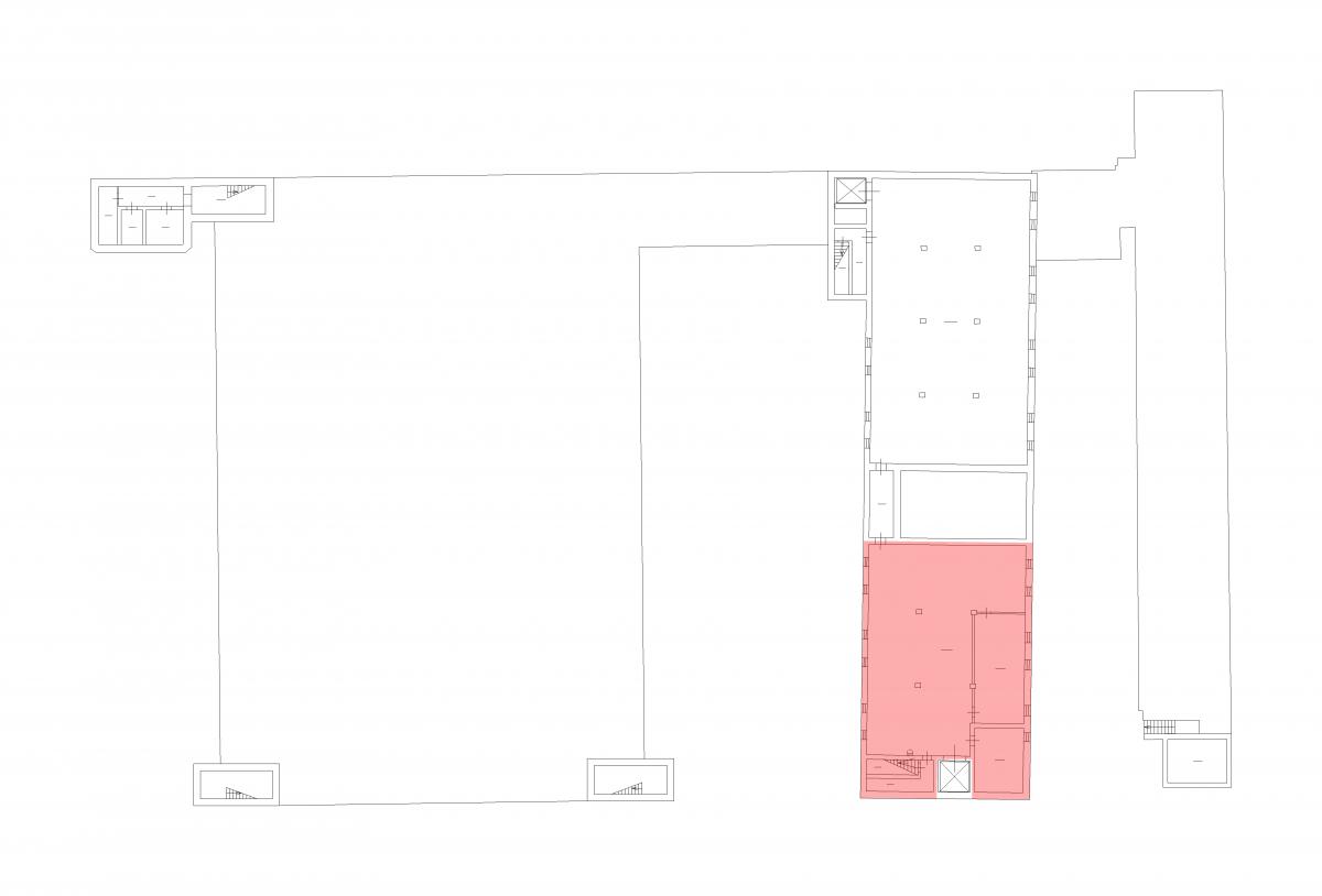
Помещение
Этаж подвал
Площадь 325 м2
Ставка 570 руб./м2
Характеристики
Безопасность
Охрана Круглосуточная
Коммуникации
Телефон есть
Интернет оптоволокно
В арендную плату входит
  • Профессиональное управление
  • НДС
Оплачивается отдельно
  • Клининг
План помещения
Описание
Собственник предлагает в аренду производственно-складское помещение во Фрунзенском районе города.

Характеристики помещения: стены - кирпич, краска, потолки высотой 2,15 м, шаг колонн: 5,96*4,21 м, бетонный пол.
На территории оборудован подъезд для негабаритного грузового транспорта.
Дверной проем для ручной разгрузки - 2,25х0,75 м.

Отопление помещения осуществляется от центральной котельной.
Электроэнергия: до 10 кВт.

Услуги: парковка.

Расположение: ул. Боровая, д. 51.
Ближайшая станция метро -"Обводный канал".
+7 (812) 644-42-02
Перезвоните мне
Хотите посмотреть? Покажем вам это помещение и несколько похожих
Запишитесь на просмотр
Вас также может заинтересовать