Назовите оператору контакт центра при звонке ваш промокод:    

Безопасная аренда

Подробнее

Онлайн просмотры и договор с цифровой подписью

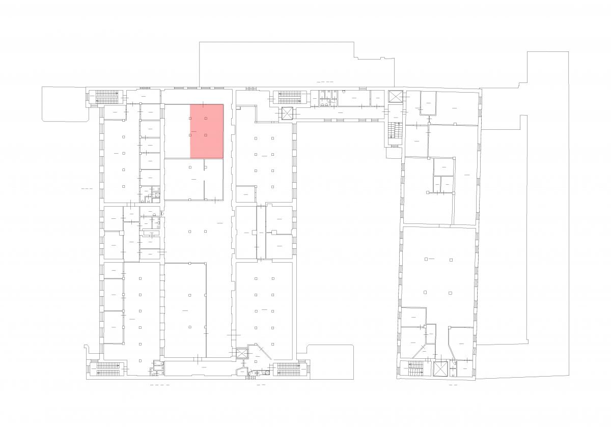
Помещение
Этаж 2
Площадь 64.7 м2
Ставка 879 руб./м2
Характеристики
Безопасность
Охрана Круглосуточная
Коммуникации
Телефон есть
Интернет оптоволокно
В арендную плату входит
  • Профессиональное управление
  • НДС
Оплачивается отдельно
  • Клининг
План помещения
Описание
Аренда производственного помещения площадью 64.7 кв. м во Фрунзенском районе города.
Шаговая доступность от станции метро "Обводный канал".

Второй этаж.
Имеется грузовой лифтом.

Санузел на этаже.
Высота потолка 3.45 м, пол - ровный, бетонный.
Оснащение: электроснабжение (выделенная электрическая мощность), освещение, отопление.

Круглосуточная охрана.
+7 (812) 644-42-02
Перезвоните мне
Хотите посмотреть? Покажем вам это помещение и несколько похожих
Запишитесь на просмотр
Вас также может заинтересовать