Назовите оператору контакт центра при звонке ваш промокод:    

Безопасная аренда

Подробнее

Онлайн просмотры и договор с цифровой подписью

Помещение
Этаж цоколь
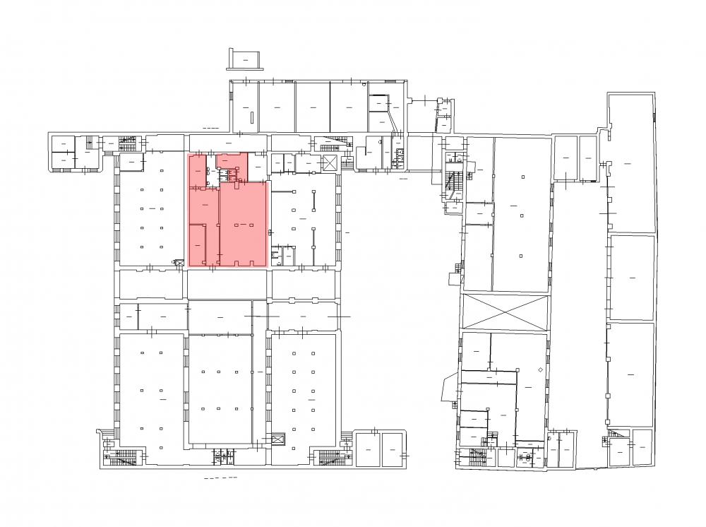
Площадь 220.1 м2
Ставка 782 руб./м2
Характеристики
Безопасность
Охрана Круглосуточная
Коммуникации
Телефон есть
Интернет оптоволокно
В арендную плату входит
  • Профессиональное управление
  • НДС
Оплачивается отдельно
  • Клининг
План помещения
Описание
Производственное помещение в аренду: надёжность и комфорт для вашего бизнеса.
Расположение в промышленно‑активном районе — развитая инфраструктура и транспортная доступность.

Адрес: г. Санкт‑Петербург, ул. Боровая, д. 51.
Площадь: 241,7 кв. м.

Идеально подходит для:
-Мелкосерийного производства;
-сборочных и ремонтных работ;
-хранения сырья и готовой продукции;
-мастерских и лабораторий;
-других производственных задач.

Ключевые преимущества:
-Высокие потолки — 4,08–5,20 м (позволяет разместить оборудование, стеллажи, коммуникации);
-ровный бетонный пол — выдерживает высокие нагрузки, подходит для установки станков и тяжёлой техники;
-наличие санузла на территории помещения — удобство для персонала;
-выделенная электрическая мощность 25 кВт — достаточно для подключения производственного оборудования;
-круглосуточная охрана и система контроля доступа — безопасность вашего имущества.

Технические характеристики и оснащение:
*Электроснабжение: выделенная мощность 25 кВт, надёжная проводка.
*Освещение: полноценное, соответствует нормам для производственных помещений.
*Отопление: стабильное, поддерживает комфортную температуру в холодное время года.

Дополнительные услуги:
-Высокоскоростной интернет — для управления производством и связи;
-цифровая телефония — для организации корпоративной связи.

Безопасность и доступ:
-Круглосуточная охрана территории;
-контрольно‑пропускной режим;
-проход на территорию — по магнитным картам доступа (исключает несанкционированный вход).
+7 (812) 644-42-02
Перезвоните мне
Хотите посмотреть? Покажем вам это помещение и несколько похожих
Запишитесь на просмотр
Вас также может заинтересовать