Назовите оператору контакт центра при звонке ваш промокод:
Онлайн просмотры и договор с цифровой подписью
Посмотрите любое помещение, не покидая собственного дома. Запишитесь на просмотр, не забудьте сообщить специалисту колл-центра, что вы хотите сделать это онлайн. Выберите удобное время, менеджер будет на связи, покажет и расскажет о помещении всё, что хотите знать
*Подписать договор через систему электронного документооборота - это просто. Достаточно иметь цифровую подпись, все приготовления и подписание займут не более 40 минут
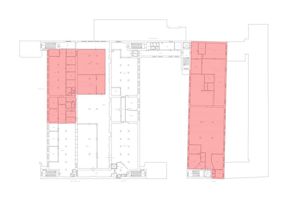
| Этаж | 2 |
| Площадь | 1 349.9 м2 |
| Ставка | 1 035 руб./м2 |
| Охрана | Круглосуточная |
| Телефон | есть |
| Интернет | оптоволокно |